Zurück zur Wohnungssuche
Hans-Oster-Straße
Landsberger Straße
Landesberger Str. 77-79 (4)

3 Raumwohnung in Gohlis!

Diese hübsche Wohnanlage liegt in einer Seitenstraße in Gohlis-Nord. Sie verfügt über eine sehr gute Verkehrsanbindung und auch die Einkäufe können Sie fast alle zu Fuß erledigen. Für die Erholung sorgen zahlreiche kleine Parks und Sportmöglichkeiten in der Nähe.


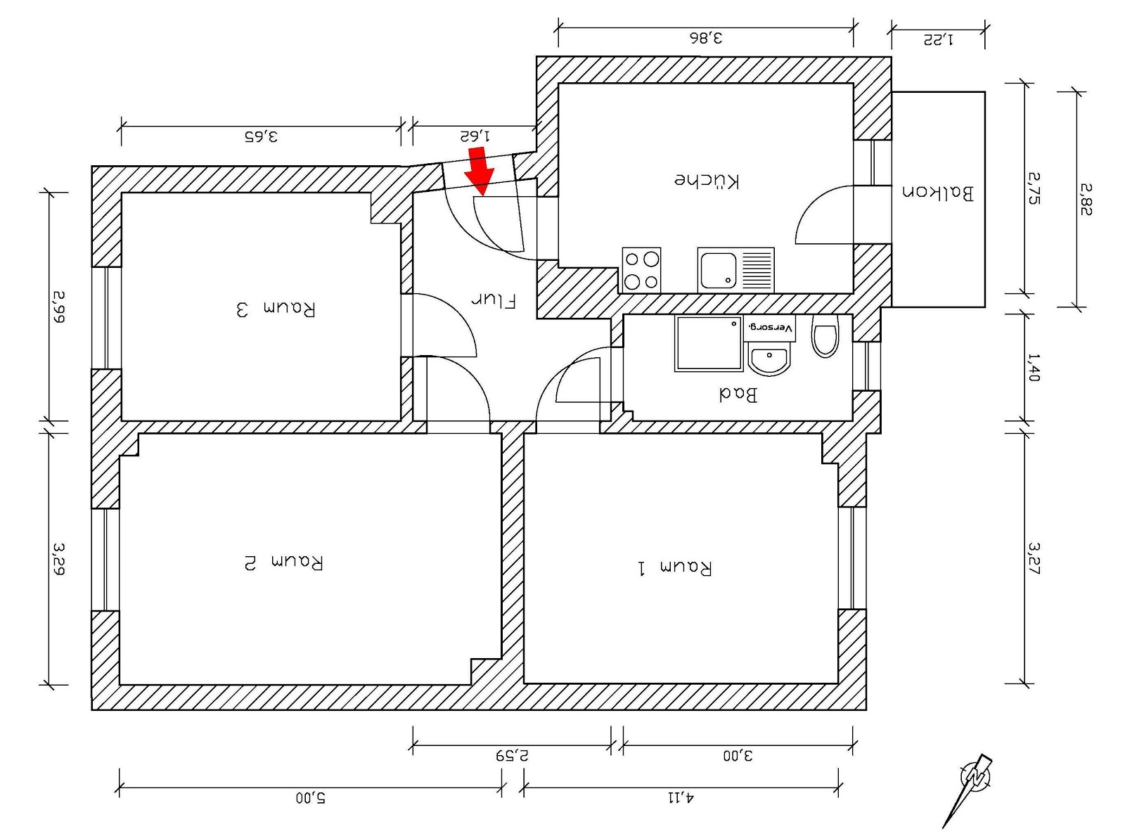
3 Zimmer
62 m² Details zu: 3 Raumwohnung in Gohlis!
738 € Warmmiete / Monat
Landsberger Str. 79, 04157 Gohlis-Nord
In Google Maps anzeigen

Wohnungsinformationen

Allgemeine Daten

Zimmeranzahl
3 Zimmer
Wohnfläche
62 m2
Geschoss
1. Geschoss

Mietzusammensetzung

Kaltmiete
514 €
Nebenkosten
105 €
Heizkosten
119 €
Gesamtmiete
738 €
Genossenschaftsanteile
1.395 €

Merkmale & Ausstattung

Bezugsfrei ab
01.02.2026

Energieausweis

Baujahr
1932
Energiepass
VERBRAUCH-Energiepass
Energieverbrauchkennwert
96 kWh/m²a
Wertklasse
C
Jahrgang
2014

Besonderheiten

Beschreibung

Die Wohnung befindet sich im beliebten 1.OG. Das helle Tageslichtbad ist ausgestattet mit einer Dusche. Die Räume sind quadratisch geschnitten und bieten Ihnen viel Platz für Ihre Möbel. Auf dem Balkon können Sie schöne Stunden verbringen. Haben wir Ihr Interesse geweckt, dann vereinbaren Sie mit uns einen Besichtigungstermin.

Objektbeschreibung

Diese hübsche Wohnanlage liegt in einer Seitenstraße in Gohlis-Nord. Sie verfügt über eine sehr gute Verkehrsanbindung und auch die Einkäufe können Sie fast alle zu Fuß erledigen. Für die Erholung sorgen zahlreiche kleine Parks und Sportmöglichkeiten in der Nähe.

Lageplan

Lageplan
Lageplan

Teilen