Bezugsfertige 3-Raumwohnung mit Dusche im Zentrum!
Als Bewohner dieses Plattenbaus befinden Sie sich in zentraler Lage zur Leipziger Innenstadt. Das Objekt liegt zwischen der Dresdner Straße und dem Gutenbergplatz unweit des GRASSI Museum. Die Haltestelle ist direkt vor der Haustür zu finden, ebenso wie Parkmöglichkeiten. Die Wohnlage ist perfekt für Studenten aufgrund kurzer Wege und besten Anbindungen.
Wohnungsinformationen
Allgemeine Daten
Mietzusammensetzung
Merkmale & Ausstattung
Energieausweis
Besonderheiten
Beschreibung
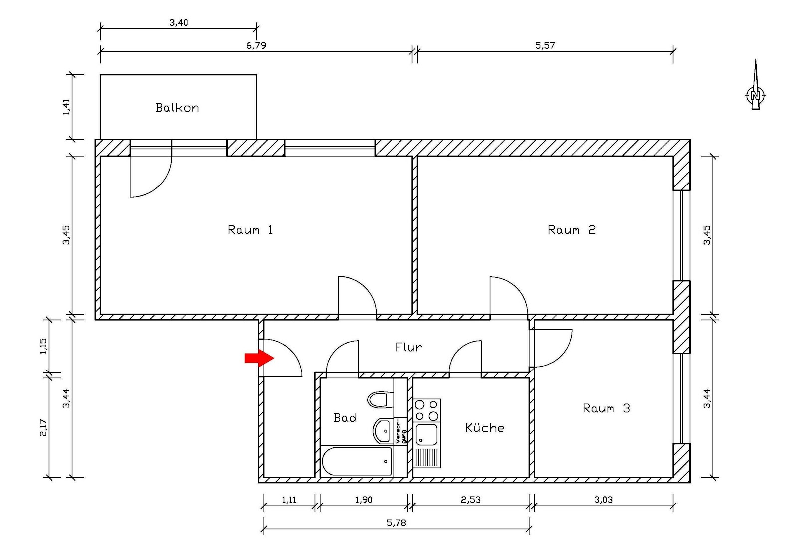
Die helle und gepflegte 3-Raumwohnung mit bester Anbindung zum Zentrum verfügt über praktisch geschnittene Räume, einen großen Balkon, neuen Designbelag und ein modern gefliestes Bad mit Dusche.
Objektbeschreibung
Als Bewohner dieses Plattenbaus befinden Sie sich in zentraler Lage zur Leipziger Innenstadt. Das Objekt liegt zwischen der Dresdner Straße und dem Gutenbergplatz unweit des GRASSI Museum. Die Haltestelle ist direkt vor der Haustür zu finden, ebenso wie Parkmöglichkeiten. Die Wohnlage ist perfekt für Studenten aufgrund kurzer Wege und besten Anbindungen.
Lage
Tram 4,7 Bus 72,73
Lageplan
