Zurück zur Wohnungssuche
Objektansicht
IMG_2017
IMG_2016
IMG_2018
IMG_2019
IMG_2015
IMG_2020

Zentrumsnahe Singlewohnung mit Balkon!

Das Objekt zeichnet sich besonders aus durch seine Nähe zum Stadtzentrum und die verkehrsgünstige Lage. In der Umgebung befinden sich Einkaufsmöglichkeiten, wie z.B. das „Eutritzsch-Zentrum“ und die „Gohlis-Arkaden“. Auch die Erholung kommt nicht zu kurz, denn der Arthur-Bretschneider-Park und das beliebte Rosental sind nicht weit entfernt.


2 Zimmer
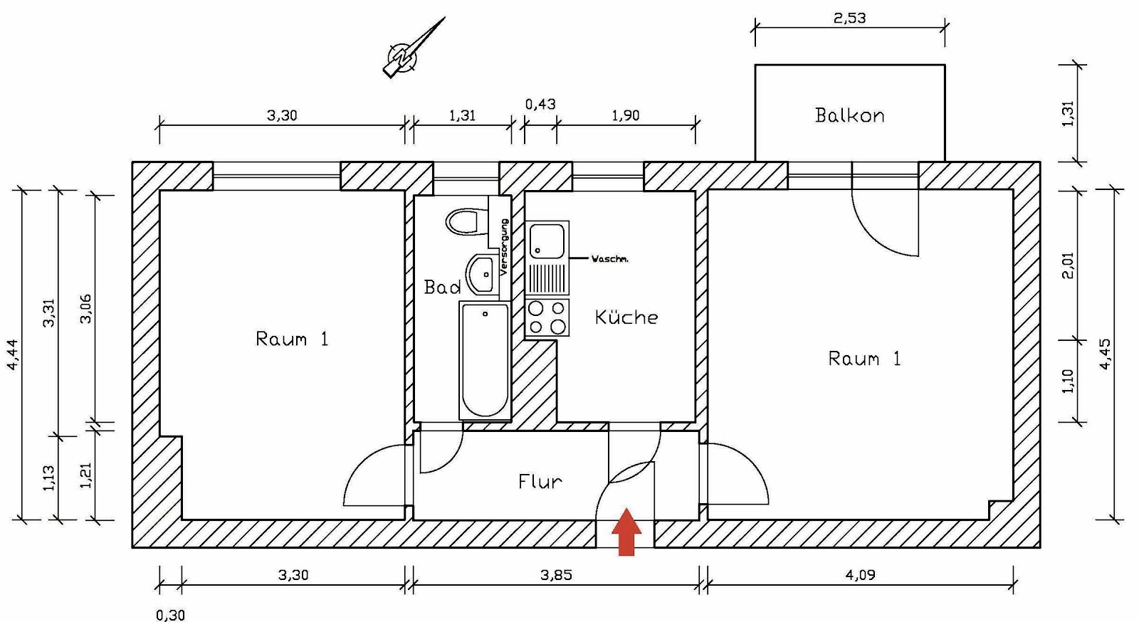
49 m² Details zu: Zentrumsnahe Singlewohnung mit Balkon!
571 € Warmmiete / Monat
Delitzscher Str. 7f, 04105 Zentrum-Nord
In Google Maps anzeigen

Wohnungsinformationen

Allgemeine Daten

Zimmeranzahl
2 Zimmer
Wohnfläche
49 m2
Geschoss
1. Geschoss

Mietzusammensetzung

Kaltmiete
410 €
Nebenkosten
73 €
Heizkosten
88 €
Gesamtmiete
571 €
Genossenschaftsanteile
1.085 €

Merkmale & Ausstattung

Bad
Wanne, Fenster
Bezugsfrei ab
16.01.2026

Energieausweis

Baujahr
1959
Energiepass
BEDARF-Energiepass
Energieverbrauchkennwert
132.7 kWh/m²a
Wertklasse
E
Jahrgang
2014

Besonderheiten

Beschreibung

Die kleine 2-Raumwohnug ist ausgestattet mit einem modernen Designbelag, einem Tageslichtbad mit Wanne sowie einem zum Innenhof gerichteten Balkon.

Objektbeschreibung

Das Objekt zeichnet sich besonders aus durch seine Nähe zum Stadtzentrum und die verkehrsgünstige Lage. In der Umgebung befinden sich Einkaufsmöglichkeiten, wie z.B. das „Eutritzsch-Zentrum“ und die „Gohlis-Arkaden“. Auch die Erholung kommt nicht zu kurz, denn der Arthur-Bretschneider-Park und das beliebte Rosental sind nicht weit entfernt.

Lage

Tram 10,11,12 S-Bahn S1, S3

Lageplan

Lageplan
Lageplan

Teilen