Zurück zur Wohnungssuche
Bad
Schlafzimmer
Objektansicht

Schöne 3 Raumwohnung für Paare oder eine kleine Familie!

Das Wohngebäude liegt in einer kleinen Nebenstraße in Schönau und ist mit einem ansehlichen Innenhof ausgestattet - der über Spielmöglichkeiten und einen Wäscheplatz verfügt. Durch die gute Anbindung an das Nahverkehrsnetz (Bus und Bahn) ist man in wenigen Minuten in der Innenstadt von Leipzig. Als Einkaufsmöglichkeit bietet sich das PEP und das Allee Center an - mit seiner Vielzahl an Geschäften und Restaurants sowie einem Kino. Im Südwesten Grünaus gelegenen ist der Kulkwitzer See.


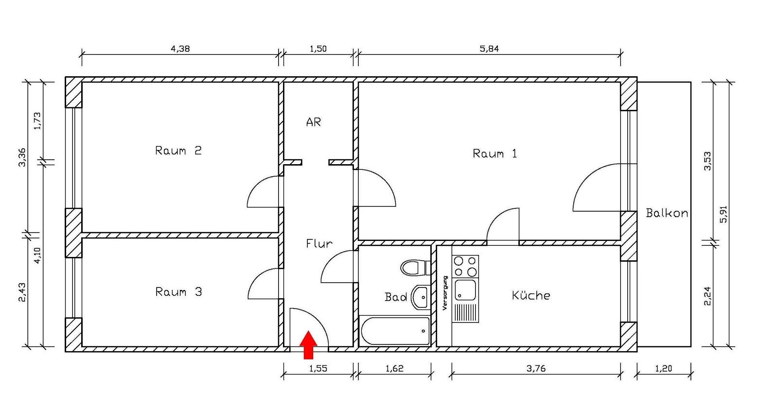
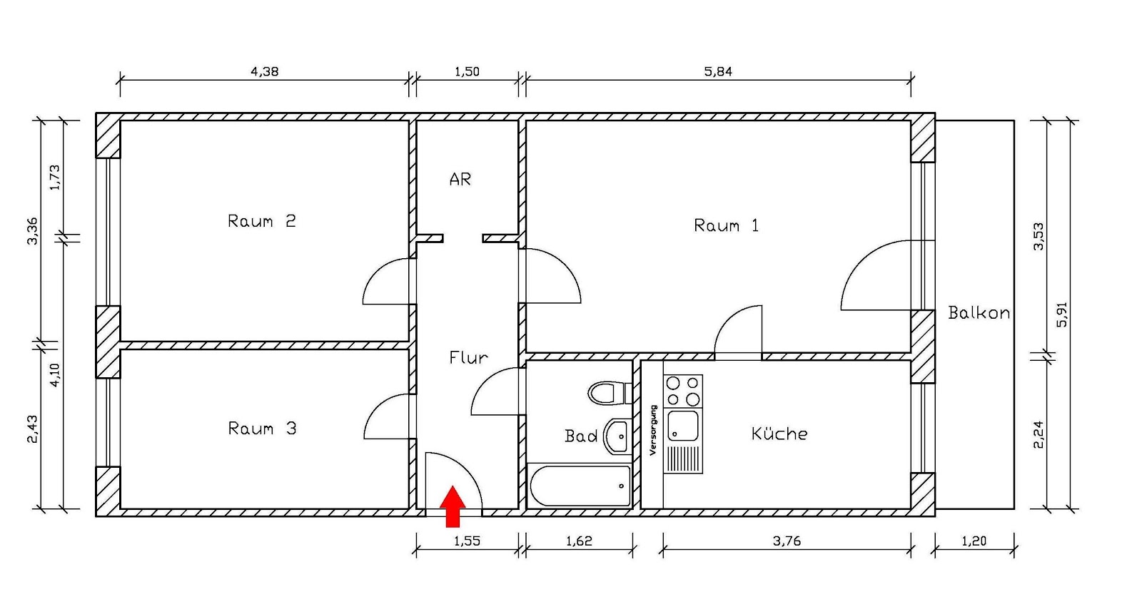
3 Zimmer
68 m² Details zu: Schöne 3 Raumwohnung für Paare oder eine kleine Familie!
735 € Warmmiete / Monat
Am Schwalbennest 31, 04205 Schönau
In Google Maps anzeigen

Wohnungsinformationen

Allgemeine Daten

Zimmeranzahl
3 Zimmer
Wohnfläche
68 m2
Geschoss
5. Geschoss

Mietzusammensetzung

Kaltmiete
491 €
Nebenkosten
122 €
Heizkosten
120 €
Gesamtmiete
735 €
Genossenschaftsanteile
1.395 €

Merkmale & Ausstattung

Bezugsfrei ab
01.12.2025

Energieausweis

Baujahr
1981
Energiepass
BEDARF-Energiepass
Energieverbrauchkennwert
81.1 kWh/m²a
Wertklasse
C
Jahrgang
2014

Besonderheiten

Beschreibung

Diese hübsche 3-Raumwohnung im 5. Obergeschoss sucht nach einem neuen Mieter! Die Wohnung verfügt über ein großes Wohnzimmer mit Balkon, ein Schlafzimmer und ein Kinderzimmer, einen Flur, eine schön geschnittene Küche mit Fenster und ein innenliegendes Bad. Der Balkon lädt zum entspannen ein.

Sonstige Angaben

W1

Objektbeschreibung

Das Wohngebäude liegt in einer kleinen Nebenstraße in Schönau und ist mit einem ansehlichen Innenhof ausgestattet - der über Spielmöglichkeiten und einen Wäscheplatz verfügt. Durch die gute Anbindung an das Nahverkehrsnetz (Bus und Bahn) ist man in wenigen Minuten in der Innenstadt von Leipzig. Als Einkaufsmöglichkeit bietet sich das PEP und das Allee Center an - mit seiner Vielzahl an Geschäften und Restaurants sowie einem Kino. Im Südwesten Grünaus gelegenen ist der Kulkwitzer See.

Lage

Tram8, 15, 35 Bus 61, 65, 66, 161

Lageplan

Lageplan
Lageplan

Teilen